Beschrijving

Zoekt u een sfeervolle en ruime eengezinswoning met zonnige tuin?
Dan is deze woning aan de Kastanjelaan zeker een bezichtiging waard! U vindt hier een lichte woonkamer, een heerlijk ruime en moderne badkamer met ligbad en 
3 slaapkamers (voorheen 4). Met zowel een voor- als achtertuin, waarbij de achtertuin op het zonnige zuiden is gelegen, kunt u het hele jaar door optimaal genieten van het zonnetje. De moderne keuken met gezellige bar, maken het plaatje helemaal compleet.

Ligging
De Kastanjelaan ligt in een rustige en kindvriendelijke woonwijk. Hier woont u op korte afstand van het gezellige centrum, waar u terecht kunt voor winkels, horeca en dagelijkse voorzieningen. In de nabije omgeving vindt u diverse recreatiegebieden zoals de Groenzoom met wandel- en fietsroutes, ideaal voor natuurliefhebbers en gezinnen die van buitenactiviteiten houden. Dankzij de gunstige ligging zijn scholen, sportfaciliteiten en openbaar vervoer eenvoudig bereikbaar.

Indeling
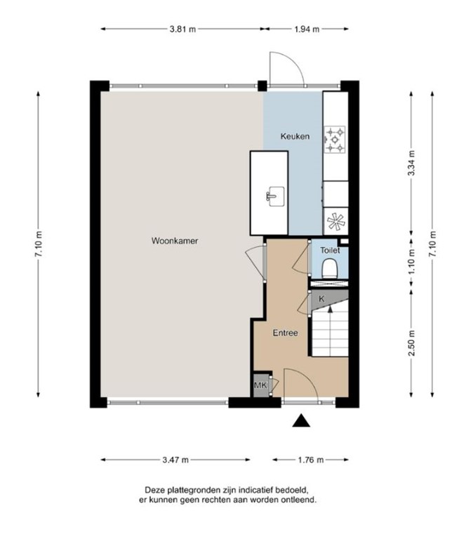
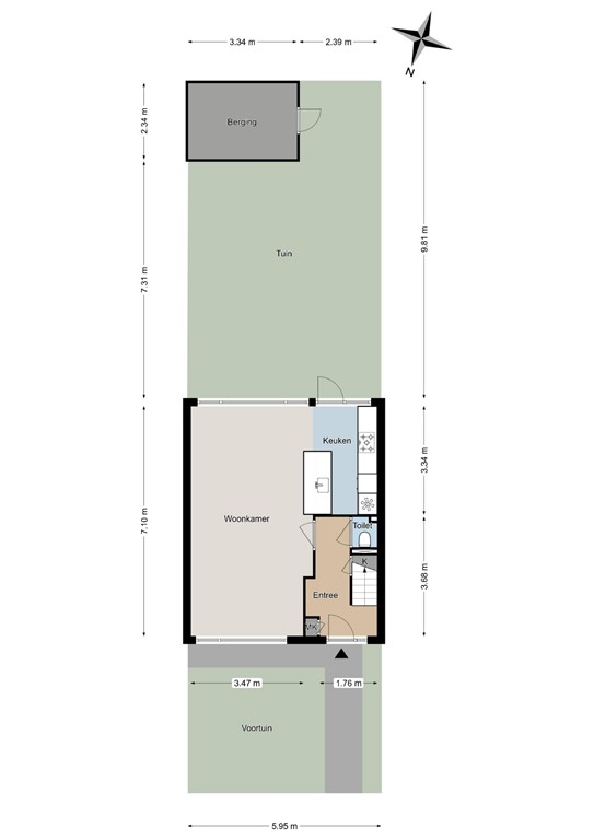
Begane grond:
Voortuin met toegang tot de woning. Hal met toegang tot de meterkast, toilet, trapkast en trapopgang naar de eerste verdieping. 
Woonkamer met gezellige zithoek en eetgedeelte. Moderne keuken welke is voorzien van, 5-pits gasfornuis, Whirlpool combi-oven, vaatwasser en koel-vriescombinatie. Ruime achtertuin, gelegen op het zonnige zuiden met praktische berging en achterom.

Eerste verdieping:
Overloop met toegang tot 2 slaapkamers (voorheen 3) en ruime moderne badkamer voorzien van ligbad, inloopdouche, 2e toilet en wastafelmeubel met 2 kranen. 
Luxe uitstraling door Betonciré afwerking. Ruimte met opstelplaats voor wasmachine en droger (voorheen badkamer)

Tweede verdieping:
Ruime overloop met dakraam, opstelplaats voor C.V. installatie en ruimte achter de knieschotten. 
3e Slaapkamer met dakraam

Kenmerken:
- Zonnige achtertuin met berging en achterom
- Gelegen in zeer geliefde wijk
- Modern en smaakvolle inrichting 
- 3 slaapkamers voorheen 4
- Moderne badkamer met ligbad en tweede toilet
- Rustige ligging nabij centrum en recreatiegebieden

Kortom, een zonnige woning op een zeer geliefde plek. Wie mag ik rondleiden? Mail naar info@bricmakelaardij.nl

Kenmerken