Beschrijving

Zoekt u een moderne en luxe woning voor het hele gezin in Delft? 
Dan is deze prachtige woning met 4 slaapkamers gelegen in absoluut een bezichtiging waard! 
De woning is modern en smaakvol ingericht en van alle gemakken voorzien. De moderne keuken met gezellige bar, composiet werkblad en alle apparatuur die een thuiskok zich maar kan wensen, vormt het hart van de woning. De gedetailleerde afwerking van de woning en het uitzicht op het groen maken het plaatje helemaal compleet.

Ligging:
De Tuindersvaart in Delft ligt in de geliefde wijk Hof van Delft, bekend om haar groene en gemoedelijke karakter. Hier woont u rustig en kindvriendelijk, met speelplekken, scholen en sportvoorzieningen in de directe omgeving. De iconische waterwoningen en Park 'Hof van Delft'  liggen op loopafstand en biedt volop ruimte voor ontspanning en recreatie. Binnen 10 minuten fietsen staat u bovendien in het historische centrum van Delft, met gezellige terrassen, restaurants en winkels. Dankzij de centrale ligging zijn Den Haag en Rotterdam in circa 20 minuten bereikbaar, en via de A13 en A4 bent u uitstekend verbonden met de rest van de Randstad. De Tuindersvaart combineert zo het plezier van rustig wonen met alle voordelen van een centrale locatie.


Indeling:
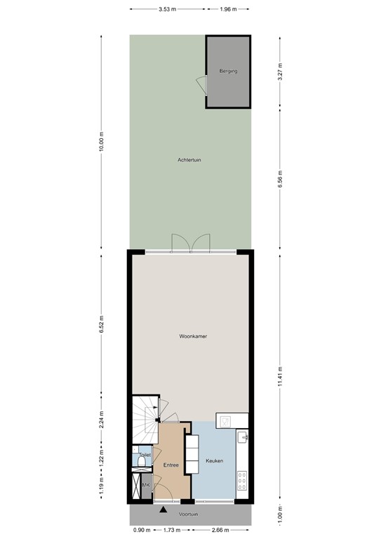
Voortuin met toegang tot de woning, de hal geeft toegang tot het moderne toilet, de meterkast, de trapopgang naar de eerste verdieping en de woonkamer. 
Hier vindt u naast het eetgedeelte en extra zithoekje, een gezellig zitgedeelte en een praktische trapkast. De grote raampartij zorgt voor veel licht, de openslaande deuren geven toegang tot de achtertuin met achterom en fietsenberging. De keuken is een echte eyecatcher, stijlvol en praktisch, uitgevoerd met hoogwaardige materialen. U vindt hier een gezellige bar om te ontbijten of bij te praten tijdens het koken. De keuken is van alle gemakken voorzien, zo vindt u hier een prachtig composiet werkblad, Neff inductiekookplaat, afzuigsysteem verwerkt in werkblad, een Quooker en een wand vol Miele-apparatuur te weten een stoomoven, koffieapparaat en combi-magnetron oven. De droom van elke thuiskok!

1e verdieping:
De hal biedt toegang tot 2 slaapkamers en de badkamer. Aan de achterzijde 1 grote slaapkamer, voorheen 2 kamers en nu in gebruik als kantoor met uitzicht op de achtertuin en het water. De hoofdslaapkamer aan de voorzijde heeft heerlijk vrij uitzicht op het groen. De moderne badkamer is uitgerust met wastafel met meubel, 2e toilet, inloopdouche en beschikt over een raam voor natuurlijke ventilatie.

2e verdieping:
Via de overloop met hoog plafond bereikt u nog 2 slaapkamers, voorzien van knieschotten voor extra opbergruimte. Dankzij de geplaatste dakkapel zijn de kamers volwaardig en licht. Op deze verdieping bevindt zich tevens een praktische waskamer met entresol voor extra bergruimte en een fonteintje.

In het kort:
Begane grond: 
Hal met modern toilet, meterkast en trapopgang naar 1e verdieping. Lichte woonkamer met trapkast en openslaande deuren naar de achtertuin met berging en achterom. Stijlvolle, volledig uitgeruste keuken met composiet werkblad en bar v.v. Quooker, vaatwasser, Neff inductiekookplaat, afzuigsysteem (Down draft Gutmann) koelkast en vriezer, Miele stoomoven, Miele combioven en geïntegreerd Miele koffieapparaat. 

1e verdieping:
Overloop met toegang tot 2 slaapkamers (voorheen 3) en de moderne badkamer met wastafel, tweede toilet, inloopdouche en raam.

2e verdieping: 
Overloop met toegang tot wasruimte en 2 lichte slaapkamers met knieschotten, dakkapel en extra bergruimte.
Praktische waskamer met aansluiting wasmachine en droger, entresol en fonteintje.

Deze woning is zeer goed onderhouden en tot in detail verzorgd, er is gebruik gemaakt van hoogwaardige materialen. Een absolute topper!


Kenmerken: 
- Gelegen in zeer geliefde wijk
- Modern en smaakvolle inrichting 
- 4 slaapkamers voorheen 5
- Achtertuin met berging en achterom
- Voorzien van vloerverwarming 
- Energielabel A
- 10 zonnepanelen 

Kortom, deze prachtige woning is absoluut een bezichtiging waard. Wacht niet te lang, dit zou zomaar uw nieuwe thuis kunnen zijn.

Kenmerken