Beschrijving
Zoekt u een charmante en ruime woning op loopafstand van hartje Delft? Dan zal deze woning met 3 slaapkamers u zeker aanspreken.
Gelegen in één van de leukste wijken van Delft, aan de rand van het geliefde Agnetapark, woont u hier in alle rust, omringd door groen en historie, terwijl de bruisende binnenstad slechts enkele minuten verderop ligt. De woning bevindt zich in een rustige, kindvriendelijke straat en biedt een perfecte balans tussen comfortabel wonen en het stadsleven. De karakteristieke sfeer, de marmeren schouw en de moderne keuken maken het geheel compleet.
Met diverse winkels, gezellige cafés en restaurants in de directe omgeving is het hier iedere dag genieten. Ook de bereikbaarheid is uitstekend, het NS-station van Delft ligt op loopafstand en via de uitvalswegen bent u snel onderweg richting Den Haag, Rotterdam of Amsterdam.
Indeling:
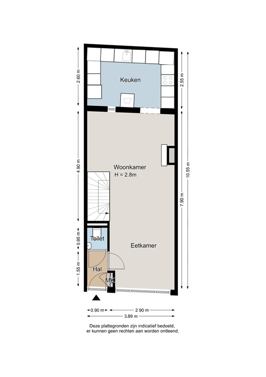
Via de voortuin met berging bereikt u de entree van de woning. Via de hal met toilet en meterkast komt u in de woonkamer met ruim woon- en eetgedeelte.
De moderne keuken sluit hier naadloos op aan en is compleet uitgerust met een vaatwasser, magnetron, oven, koel-/vriescombinatie en aansluiting voor de wasmachine. Dankzij de bovenlichten is de keuken bovendien heerlijk licht, wat zorgt voor een frisse en prettige kookomgeving.
In de woonkamer zorgt de marmeren schouw met gashaard voor extra sfeer en warmte, de stenen vloer met vloerverwarming draagt bij aan een aangenaam wooncomfort, het hele jaar door. Via de open trap bereikt u de 1e verdieping.
1e Verdieping:
Overloop met toegang tot 2 slaapkamers, de badkamer en de trapopgang naar de 2e verdieping.
Aan de voorzijde bevindt zich een ruime slaapkamer, momenteel in gebruik als kantoor, met uitzicht op het groene Agnetapark.
De moderne badkamer is voorzien van een inloopdouche en een wastafelmeubel. Aan de achterzijde ligt de hoofdslaapkamer, met directe toegang tot een ruim en zonnig balkon met uitzicht over de groene tuinen.
2e Verdieping:
Zeer ruime verdieping met verrassend veel bergruimte achter de schuifdeuren. Deze veelzijdige ruimte is ideaal te gebruiken als hobbykamer, thuiswerkplek of slaapkamer.
Kenmerken:
- Centrale ligging
- Zeer geliefde wijk
- Veel groen en speelgelegenheid
- Moderne keuken en badkamer
- Gedeeltelijk vloerverwarming
- 6 Zonnepanelen
Kortom, een heerlijke plek in Delft voor wie sfeervol en centraal wil wonen.
Heeft u interesse in deze leuke woning? Ik leid u heel graag rond.
Plattegronden
BGG_laan_van_altena_begane_grond_begane_grond_20260417_19af7a.jpg
Etage_laan_van_altena_eerste_verdiepi_eerste_verdiepi_20260417_35c8ae.jpg
Zolder_laan_van_altena_tweede_verdiepi_tweede_verdiepi_20260417_517813.jpg
Perceel_laan_van_altena_begane_grond_begane_grond_20260417_19af7a.jpg